3 , Днепровский р-н, Сверстюка, 6г,
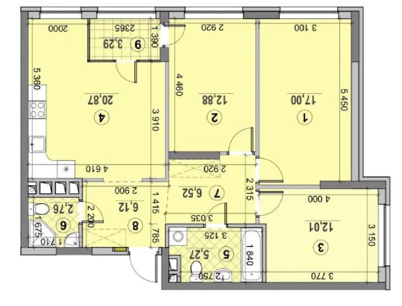
11-25, 88.1// м2
Цена : 135000 $
Контакты: Станіслав Валентинович, 0968486185
Дополнительно : Продам 3-к. квартиру в ЖК Галактика( Пегас), метро Лівобережна, Дніпровського р-ну по вул. Сверстюка 6Г, загальною площею 88.1м2. Лічильники на воду, опалення, електроенергію встановленні, приміщення пысля будывельників. Встановлені вікна з профілем REHAU,вид з яких виходить на правий берег і Дарницю, територія під охороною. Поряд школи, дитячі садки, гарна транспортна розв’язка, гіпермаркет Новус. Чудова інвестиція на довгі роки!
Кликните на фото для просмотра в увеличенном режиме.
